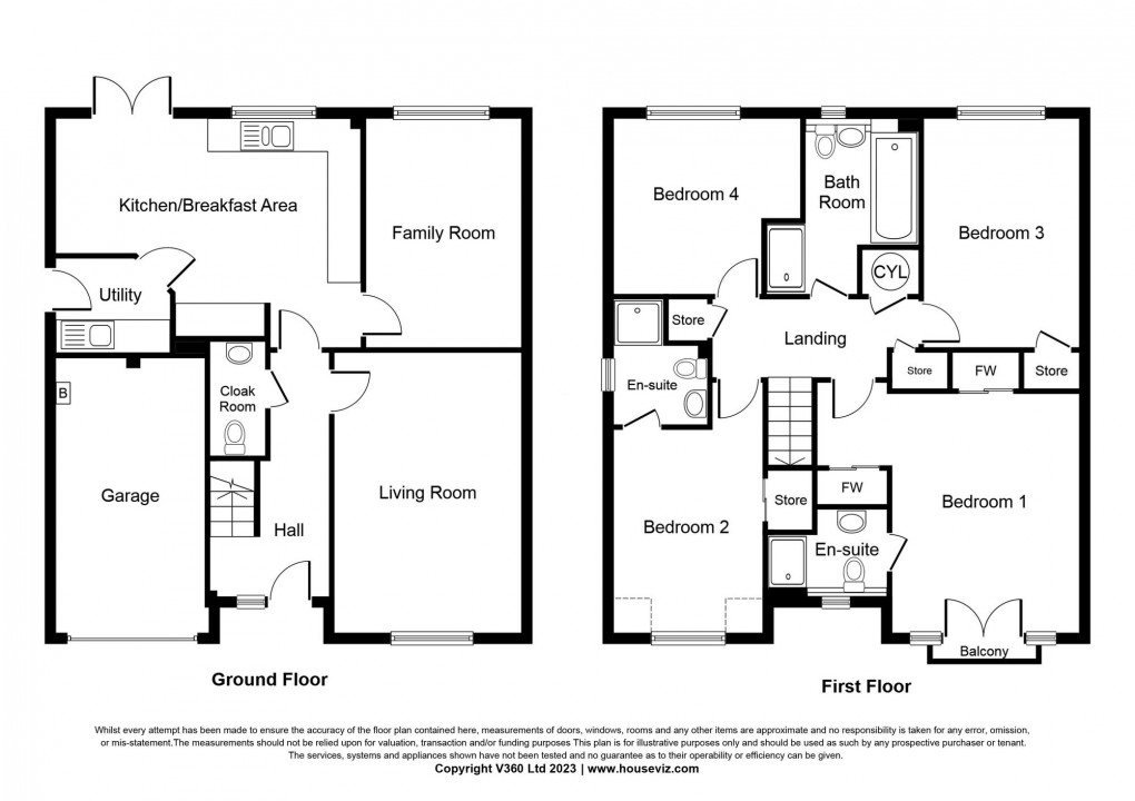
Description
- Exceptionally well presented 4 Double Bedroom Detached Property - The Muirfield design by Bellway
- Elegant Breakfasting Kitchen with AEG integrated appliances and south-facing French doors to garden
- Useful Utility Room and ground floor Wc
- Two Public Rooms - Lounge and Dining Room offering versatile use
- Two En-suites and Four Piece Family Bathroom
- South facing landscaped Rear Garden offers uninterrupted views towards Pentlands
- Double monobloc Driveway leading to single Garage
- Property offers open aspect to front and rear
- Short walk to Town Centre and ideally positioned for commuting
This immaculate 4 Bedroom Detached property offers exceptional family living with two bright Public Rooms, a sleek Breakfasting Kitchen with AEG integrated appliances, Utility Room and Lower Level Wc. The upper level features a luxurious Primary Bedroom with Juliet Balcony & En-suite, a second Bedroom with private En-suite, two additional Double Bedrooms and Four Piece Family Bathroom. Highlights also include South Facing fully enclosed Landscaped Rear Garden with open aspect. Double Monobloc Driveway and Single Garage - Within walking distance to the Town Centre and ideal commuter links close-by.
This truly outstanding Four Bedroom Detached villa, the sought-after Muirfield design built by Bellway Homes in 2018 enjoys a prime position within the development benefitting from open views to the front and rear. Immaculately presented throughout the property offers stylish contemporary family living in a highly desirable setting.
Upon arrival the property impresses with a generous double monobloc driveway and an inviting entrance that opens into a welcoming hallway which showcases pristine neutral decor complemented by herringbone design laminate flooring which flows seamlessly through to the Kitchen and Wc. The beautifully appointed Breakfasting Kitchen is equipped with high quality AEG appliances and boasts elegant cabinetry, ample worktop space and French doors that lead directly to the south-facing rear garden. A practical Utility Room sits adjacent providing additional storage and laundry space.
To the front of the property you will find the Lounge which offers an ideal area for unwinding, while the separate Dining Room provides excellent flexibility for formal dining, home working or additional living space.
Ascending the staircase, the upper hallway is extremely welcoming and offers generous storage. The luxurious Primary Bedroom features two double fitted wardrobes, a Juliet balcony and a stylish en-suite shower room. The second Double Bedroom, decorated in calm neutral tones, also benefits from its own private en-suite. Bedrooms Three and Four are generously sized and can comfortably accommodate double beds. The Family Bathroom completes the upper level featuring a separate double shower enclosure, bath, Wc and wash-hand basin complemented by neutral tiling and soothing decor to create a relaxing ambience.
Externally the south-facing rear garden enjoys uninterrupted natural light and open views towards the Pentland Hills, offering an exceptional outdoor space ideal for family living, entertaining or simply enjoying the surroundings. There is side gated access which leads to the single garage and driveway.
Floorplan
EPC
To discuss this property call us:
Market your property
with KnightBain
Book a market appraisal for your property today. Our virtual options are still available if you prefer.
