Offers over £315,000

Calculate your mortgage repayments

3 bedroom House Sold STC

James Young Avenue, Uphall Station, EH54

  • House
  • 3 bed
  • 3 bath
  • 1 reception

Key Features

  • Beautifully Presented Three Bedroom Detached House In A Desirable Location
  • Three Double Bedrooms One With En-Suite
  • All 1's On The Home Report
  • Bright And Spacious Open Plan Kitchen/Dining Area With Patio Doors
  • Excellent Storage Options Throughout
  • Solar Panels
  • Fully Enclosed Rear Garden
  • Garage & Driveway
  • Close Proximity To Uphall Train Station

Description

This beautifully presented three bedroom detached house offers an exceptional opportunity to acquire a modern family home in a highly desirable location, ideal for those seeking both comfort and convenience. The property boasts three generously sized double bedrooms, one of which benefits from a stylish en-suite shower room, ensuring privacy and a touch of luxury.

The accommodation is thoughtfully arranged to maximise light and space, with a bright and spacious open plan kitchen and dining area that features patio doors, creating a welcoming atmosphere for both every-day living and entertaining guests. The kitchen is fitted with contemporary units and integrated appliances (perfect for the keen cook), while the dining area provides ample room for family meals and social gatherings.

Throughout the home, excellent storage options are provided, including built-in wardrobes and additional cupboard space, catering to the needs of a busy household. The property has been maintained to an impressive standard, reflected in its all 1’s rating on the Home Report, offering peace of mind to prospective buyers. Energy efficiency is enhanced by the inclusion of solar panels, reducing utility costs and contributing to a more sustainable lifestyle. Additional features include a modern family bathroom, a welcoming entrance hallway, and a convenient downstairs WC.

The property also benefits from a garage and driveway, providing secure off-street parking and further storage solutions. Located within close proximity to Uphall Train Station, this home is perfectly positioned for commuters and families alike, offering easy access to local amenities, schools, and transport links.

With its combination of spacious interiors, high-quality finishes, and practical features, this detached house represents a superb choice for those looking to move into a well-established and sought-after residential area. Early viewing is highly recommended to fully appreciate all that this outstanding property has to offer.


Location


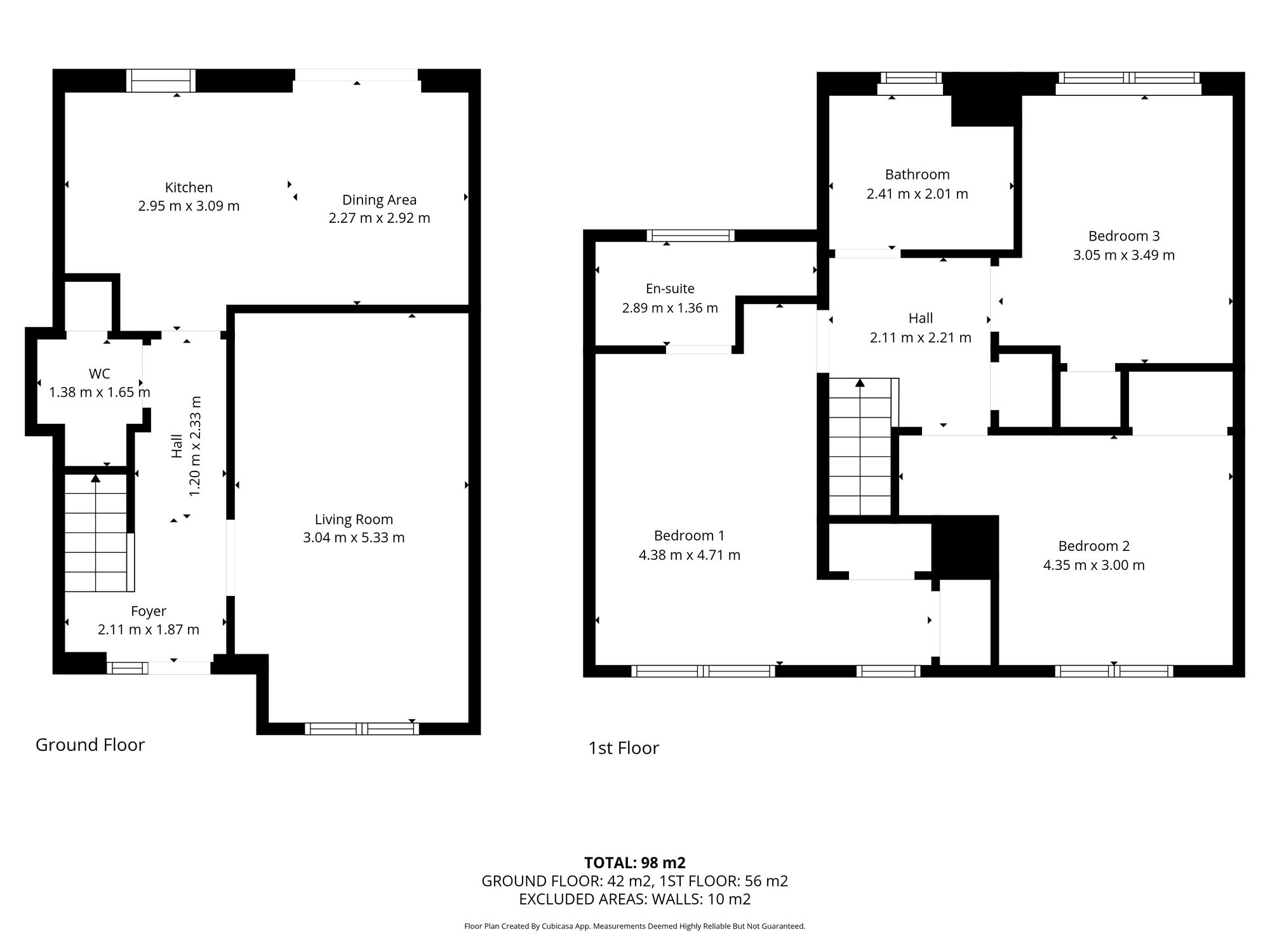
Floorplan

Floorplan

EPC

EPC for James Young Avenue, Uphall Station, EH54

Video Tour


*This mortgage calculator is provided for general information purposes only. It's intended to provide you with an estimate of your potential mortgage payments and does not constitute an offer of finance or advice. The calculations are based on the information you provide and do not take into account your individual needs and circumstances.

The calculator does not include all the costs you will need to pay when taking out a mortgage. Your actual mortgage payments may be higher or lower than the estimates provided by this calculator. The interest rates used in the calculations are subject to change and may not reflect the actual rates available in the market.

Please note that the calculator does not consider changes in interest rates over time, early repayment charges, or any other fees and charges that may apply to your mortgage. You should always seek professional advice before making any financial decisions.

Remember, your home may be repossessed if you do not keep up repayments on your mortgage.

Calculate Your Stamp Duty
£
Results
Stamp Duty To Pay:
Effective Rate:
Tax Band % Taxable Sum Tax

£ 0
£ 0

Your estimated gross rental yield would be:

0.00%
Share this property