Fixed Price £70,000

Calculate your mortgage repayments

1 bedroom Flat Sold STC

West Main Street, Uphall, EH52

  • Flat
  • 1 bed
  • 1 bath
  • 1 reception

Key Features

  • Well Presented One Bedroom Flat
  • Ideal For First Time Buyer Or Investor
  • Well Proportioned Double Bedroom With Built In Storage
  • Chain Free
  • Bright And Spacious Open Plan Lounge/Kitchen Area
  • Good Variety Of Storage Options Throughout
  • Close To Transport Links
  • Central Village Location
  • Secured Access To The Rear

Description

Welcome to this charming one-bedroom flat, ideally suited for both first-time buyers and savvy investors looking for a promising opportunity. Upon entering, you are greeted by a well-presented open-plan lounge and kitchen area, perfect for both relaxing evenings and entertaining guests.

The property boasts a good-sized double bedroom, providing a peaceful retreat at the end of a long day, where relaxation is inevitable. Storage options are plentiful, offering versatile solutions to keep belongings organised and out of sight, ensuring a clutter-free living environment.

Situated in a central village location, convenience is key as amenities and local attractions are within easy reach. Whether it's a leisurely stroll to nearby cafes or a quick trip to the grocery store, everything you need is just a stone's throw away. The secured access to the rear of the property provides an added layer of peace of mind, allowing you to feel secure and at ease in your own space.

This property presents a unique opportunity to create a comfortable home or a lucrative investment venture. The versatile layout and central location make it an attractive option for those seeking a property with both potential and practicality. With its charming appeal and functional design, this one-bedroom flat is a rare find that promises a lifestyle of convenience and comfort.

Don't miss out on the chance to make this property your own – seize the opportunity to experience village living at its finest. Contact us today to arrange a viewing and take the first step towards making this charming flat your new home or investment venture.


Location


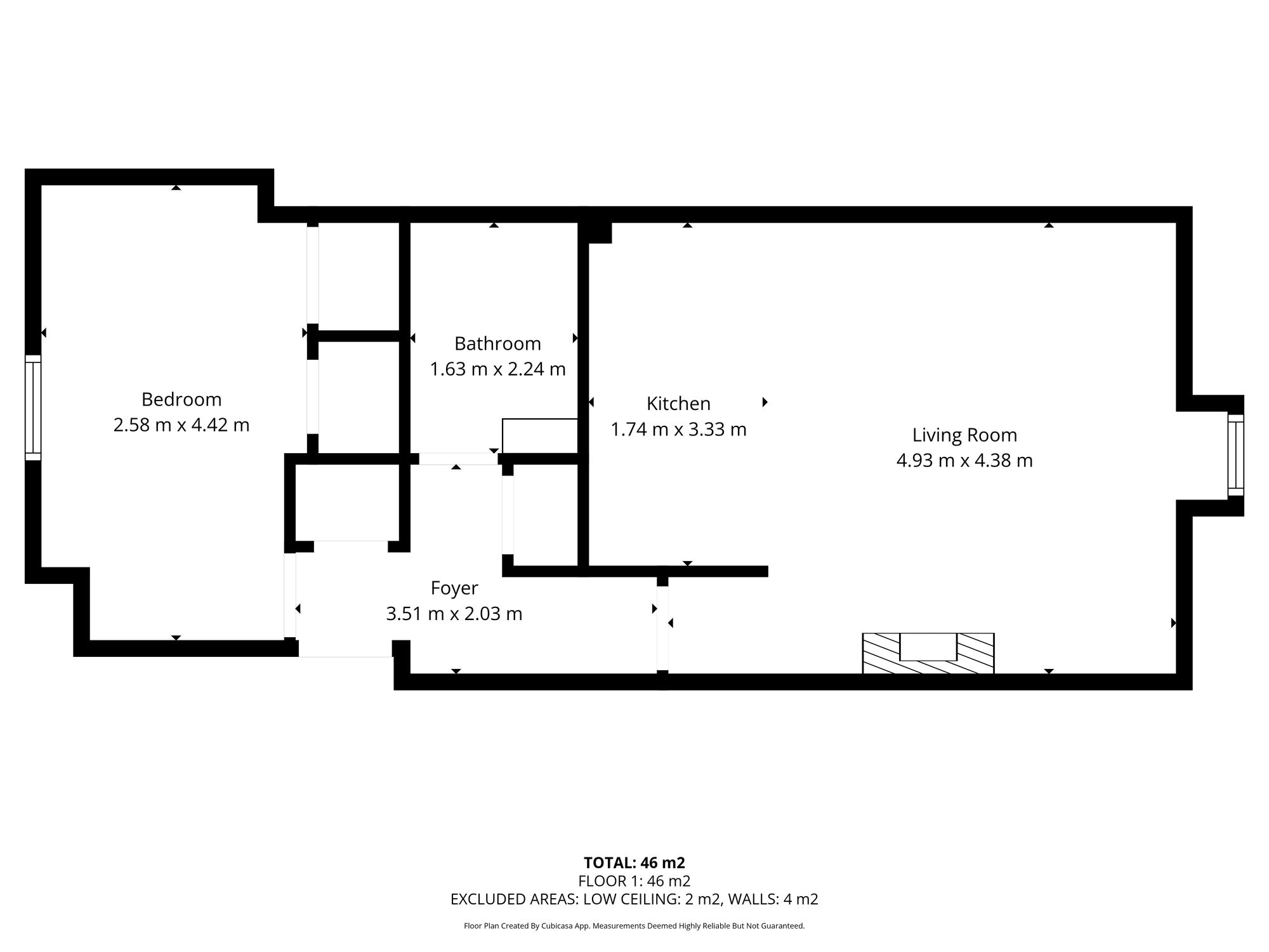
Floorplan

Floorplan

EPC

EPC for West Main Street, Uphall, EH52

Video Tour


*This mortgage calculator is provided for general information purposes only. It's intended to provide you with an estimate of your potential mortgage payments and does not constitute an offer of finance or advice. The calculations are based on the information you provide and do not take into account your individual needs and circumstances.

The calculator does not include all the costs you will need to pay when taking out a mortgage. Your actual mortgage payments may be higher or lower than the estimates provided by this calculator. The interest rates used in the calculations are subject to change and may not reflect the actual rates available in the market.

Please note that the calculator does not consider changes in interest rates over time, early repayment charges, or any other fees and charges that may apply to your mortgage. You should always seek professional advice before making any financial decisions.

Remember, your home may be repossessed if you do not keep up repayments on your mortgage.

Calculate Your Stamp Duty
£
Results
Stamp Duty To Pay:
Effective Rate:
Tax Band % Taxable Sum Tax

£ 0
£ 0

Your estimated gross rental yield would be:

0.00%
Share this property